- Woonoppervlakte
- Circa 84 m²
- Perceeloppervlakte
- Circa 151 m²
- Bouwjaar
- Gebouwd in 1994
- Aantal kamers
- 4 kamers (3 slaapkamers)
Als je zorgeloos wilt wonen op een prettige plek met alle voorzieningen dichtbij, dan kan dit je nieuwe huis zijn.
Bijzonderheden:
-vrije ligging voor en achterzijde
-heerlijke tuin met veel groen
-vaste trap naar zolder
-kindvriendelijke woonomgeving
-de woning is volledig geïsoleerd, energielabel B
-gedeeltelijk voorzien van rolluiken
-aan de achterzijde is een overkapt terras met spots
-de slaapkamer aan de voorzijde en de badkamer zijn voorzien van rolluiken
Bouwjaar: 1995.
Inhoud: 322 m³.
Woonoppervlakte: 84 m², overige inpandige ruimte 9 m²
Perceel: 151 m².
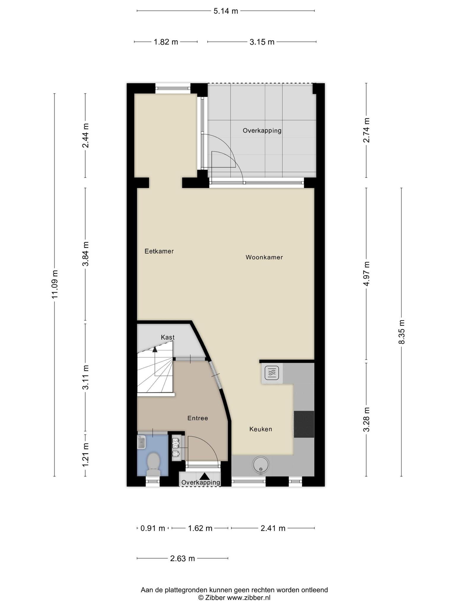
Indeling
Begane grond:
Achter de entree bevindt zich de hal met het toilet, de meterkast, een praktische provisiekast en de trap naar de 1e verdieping. Via de hal kom je in de sfeervolle tuingerichte woonkamer met een laminaatvloer en een deur naar het terras. Aan de voorzijde van de woning bevindt zich de lichte keuken voorzien van een 5–pits gaskookplaat, RVS-schouw, combi-magnetron, koelkast en vaatwasser. Aangebouwde werk-/speelruimte met eveneens een deur naar het terras.
1e verdieping:
Hier bevinden zich de 3 slaapkamers van resp. 11, 9 en 7 m² en deze zijn voorzien van een nette laminaatvloer. De badkamer is voorzien van een ligbad, 2e toilet en een wastafel.
2e verdieping:
Vaste trap naar zolderberging voorzien van een lichte tegelvloer, een Velux kantelraam en met wasmachineaansluiting en CV-ruimte (HR combi AWB 2008).
De achtertuin is voorzien van een terras en veel groen. Achter in de tuin is een handige bergschuur voor fietsen en gereedschap. Aangebouwd aan het huis vind je de gezellige overkapping/veranda. Een heerlijk plekje om lekker te ontspannen of een boek te lezen en te genieten van de tuin. Verder biedt de tuin veel privacy met de hele dag de zon in de tuin.
Overdracht
- Vraagprijs
- € 342.000 k.k.
- Status
- Verkocht
- Aanvaarding
- In overleg
Bouw
- Object type
- Eengezinswoning, tussenwoning
- Soort bouw
- Bestaande bouw
- Bouwjaar
- 1994
- Soort dak
- Zadeldak
Oppervlakte en inhoud
- Woonoppervlakte
- 84 m²
- Perceeloppervlakte
- 151 m²
- Inhoud
- 322 m³
- Overige inpandige ruimte
- 7 m²
- Externe bergruimte
- 6 m²
- Gebouwgeb. buitenruimte
- 9 m²
Indeling
- Aantal kamers
- 4 kamers (3 slaapkamers)
- Aantal badkamers
- 1 badkamer
- Badkamervoorzieningen
- Ligbad, toilet, wastafel
- Aantal woonlagen
- 3 woonlagen
- Voorzieningen
- Rolluiken, tv-kabel
Energie
- Energielabel
- B
- Energielabel registratie
- 24-07-2025
- Isolatie
- Dakisolatie, muurisolatie, vloerisolatie, dubbel glas
- Verwarming
- Cv-ketel
- Warm water
- Cv-ketel
- Cv ketel
- Awb combiketel gas gestookt uit 2008 (eigendom)
Buitenruimte
- Ligging
- In woonwijk, vrij uitzicht
- Tuin
- Achtertuin, voortuin
- Afmetingen achtertuin
- 50 m² (9.5 meter diep en 5.25 meter breed)
- ligging tuin
- Gelegen op het noorden en bereikbaar via achterom
Bergruimte
- Schuur / berging
- Vrijstaande houten berging
Garage
- Soort garage
- Geen garage
Indicatie hypotheeklasten
Eigen inleg:
Spaargeld / overwaarde
Rente:
Laagste 10-jaars rente
Laagste 10-jaars rente
2,85% - Centraal Beheer Groen... - NHG
3,08% - Centraal Beheer Groen... - 80%
Laagste 20-jaars rente
3,29% - Centraal Beheer Groen... - NHG
3,52% - Centraal Beheer Groen... - 80%
Laagste 30-jaars rente
3,41% - Centraal Beheer Groen... - NHG
3,74% - Centraal Beheer Groen... - 80%
Hypotheek:
Bruto maandlasten: € 0 p/m
Netto maandlasten: € 0 p/m
Hoe berekenen we dit?
Het rentepercentage is gebaseerd op de laagste 10 jaars vaste rente voor één hypotheekdeel. De vermelde rente (2.85% met NHG) is gecontroleerd op 03-02-2026. Deze berekening is gebaseerd op een annuïteitenhypotheek die volledig wordt afgelost, waarbij de maandlasten gedurende de gehele looptijd gelijk blijven. De werkelijke rente en netto maandlasten kunnen variëren, afhankelijk van uw persoonlijke situatie en de hypotheekverstrekker. Raadpleeg een financieel adviseur voor een nauwkeurige berekening en advies. Aan deze berekening kunnen geen rechten worden ontleend; het dient enkel als indicatie.
Documentatie
Kadastrale kaart
Leefomgeving
Plattegronden PDF
BAG uittreksel
Brochure
Bezoek onze website
Inloggen move.nl
Bezichtiging
Bod uitbrengen
Waardebepaling
Zoekopdracht
Alles downloaden
Zonnegrenzen bekijken
Op de kaart
Inwoners in Wijchen
Cijfers voor postcodegebied 6604
- Totaal aantal inwoners
- 36260 inwoners
- Mannen
- 49%
- Vrouwen
- 51%
Inwoners in Wijchen
Cijfers voor postcodegebied 6604
- tot 15 jaar
- 12%
- 15 tot 25 jaar
- 13%
- 25 tot 35 jaar
- 19%
- 45 tot 65 jaar
- 34%
- 65 en ouder
- 21.7%
Huishoudens in Wijchen
Cijfers voor postcodegebied 6604
- Eenpersoons zonder kinderen
- 27%
- Meerpersoons zonder kinderen
- 32%
- Huishoudens zonder kinderen
- 59%
Huishoudens in Wijchen
Cijfers voor postcodegebied 6604
- Huishoudens met één kind
- 20%
- Huishoudens met meerdere kinderen
- 21%
- Huishoudens met kinderen
- 41%
Woningen in Wijchen
Cijfers voor postcodegebied 6604
- Woningen voor 1945
- 6%
- Woningen tussen 1945 en 1965
- 6%
- Woningen tussen 1965 en 1975
- 3%
- Woningen tussen 1975 en 1985
- 17%
- Woningen tussen 1985 en 1995
- 45%
Woningen in Wijchen
Cijfers voor postcodegebied 6604
- Woningen tussen 1995 en 2005
- 16%
- Woningen tussen 2005 en 2015
- 3%
- Woningen na 2015
- 2%
- Huurwoningen
- 40%
- Koopwoningen
- 60%
Overige in Wijchen
Cijfers voor postcodegebied 6604
- Gemiddelde WOZ waarde
- € 309.000,-
- Personen onder de 65 met uitkering
- 5%
Overige in Wijchen
Cijfers voor postcodegebied 6604
- Adressen per km²
- 670
- Stedelijkheid (schaal 1 op 5)
- 40%
Korte feiten over Wijchen
Wijchen is de hoofdplaats van de gemeente Wijchen in de Nederlandse provincie Gelderland. De plaats is met 36.625 inwoners (op 1 januari 2021) de grootste in de gelijknamige gemeente van bijna 41.000 inwoners. Wijchen ligt aan de zuidgrens van Gelderland, tegen Noord-Brabant aan.
Indien u vragen heeft of u wilt een bezichtiging inplannen, dan kunt u gebruik maken van het formulier hiernaast. Er zal daarna op korte termijn contact met u worden opgenomen.
Kasteellaan 23
6602 DB, Wijchen
024 64 90100 binnendienst@driessenmakelaardij.nl www.driessenmakelaardij.nlContact opnemen
Al 40 jaar uw huismakelaar
Ondernemende makelaar met ambitie
U wilt een huis kopen, verkopen of laten taxeren. Het liefst schakelt u een betrouwbare makelaar in bij u in de buurt. Maar hoe vindt u precies de makelaar die het best bij u past? Het aanbod is al zo groot.
Driessen Makelaardij maakt uw keuze een stuk gemakkelijker. Hoe? Allereerst zijn we al veertig jaar een begrip in de regio. Met een kantoor in Wijchen en in Nijmegen kennen wij de lokale huizenmarkt op ons duimpje. En niet onbelangrijk: de huizenmarkt kent ons. ‘Want vaak is de eerste stap van een woningzoeker de stap naar ons kantoor.’ Hierdoor weten wij vraag en aanbod snel bij elkaar te brengen en perfect in te spelen op de wensen van klanten en potentiële klanten. Bovendien zijn we aangesloten bij de NVM, de grootste brancheorganisatie in de makelaardij. Onze mensen zijn dus uitstekend in staat het hele aan- en verkooptraject van begin tot eind professioneel te begeleiden.
Uw ambitie is onze ambitie. Dat wil zeggen: u verwacht van ons dat we tot het uiterste gaan u die kwaliteit te bieden waarom we al zo lang bekend staan. Daar mag u ons aan houden!
Nieuwste reviews
-
Zesakkers 2015
Het contact met de makelaar verliep erg goed. Goed bereikbaar, korte lijntjes en deskundig. Erg tevreden
-
Aalsburg 2524
Fijne en goede communicatie.Goed advies en meedenken met de klant.Zo kan het dus ook 😀Bedankt Ivonne Jansen + binnendienst team
-
Marskramer 51
Prettig contact met de makelaar; zij hield ons tussentijds steeds op de hoogte na een bezichtiging; heel fijn!